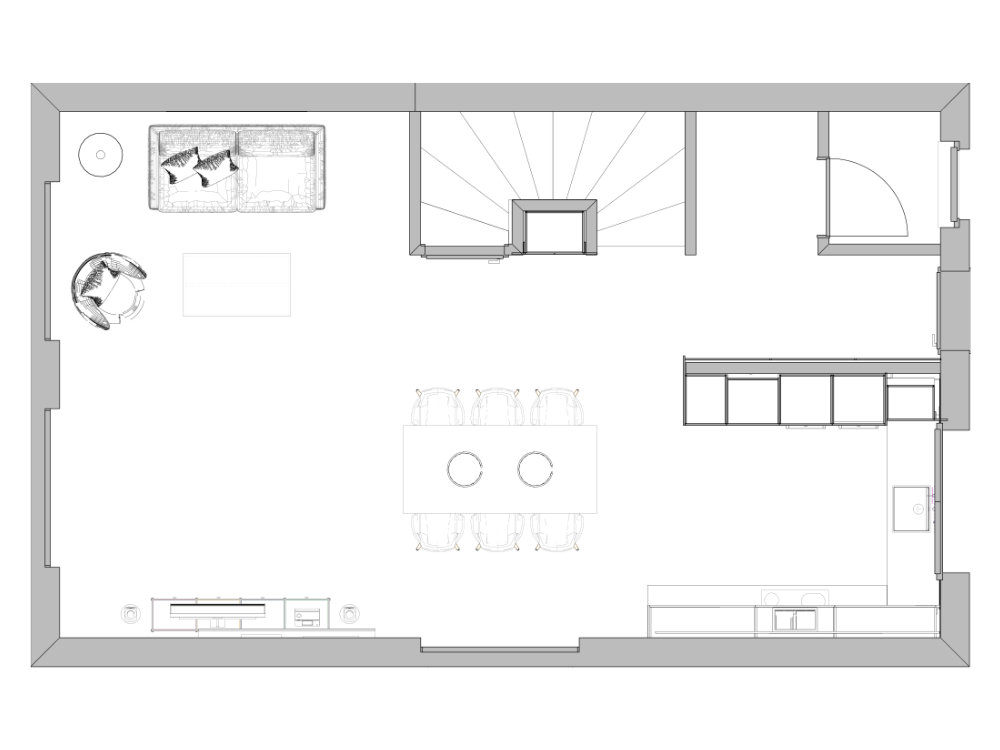
Umbau Parterre Einfamilienhaus

Mit einer neuen Küche und Parkett auf dem ganzen Stockwerk hat das Projekt angefangen. Dazu kam ein Farbkonzept, bestehend aus zwei Varianten, für den ganzen Raum.

Bei der Umsetzung wurden die alten Fliesen entfernt, alle Wände und die Decke neu verputzt und gestrichen. Im ganzen Parterre und die Treppe zum ersten Stock wurde mit einem Eichenparkett belegt. Die neue Küche wurde aus suppermatten Verbundplatten hergestellt und mit einer warmgewalzten Stahlabdeckung versehen.

Abgerundet wurde das Projekt mit einem neuen Nussbaum Tisch aus der BINZ Kollektion.

Vor dem Umbau

Umsetzung: 2022
Fläche: 60m2
Leistungen: Farb-, Materialkonzept, Planung und Umsetzung
Lichtkonzept: Lichtform West